Retour à la liste

LAROUSSE | LA RADIEUSE | 2 PIECES

La Rousse - Saint Roman / La Radieuse

contacter l'agence Monaco Properties

Vente

réf VMO-0724-P_251120-07

Caractéristiques

Prix de vente3 200 000 €

Type de bienAppartement

Nb de pièces2

Chambre(s)1

Salle(s) de bain1

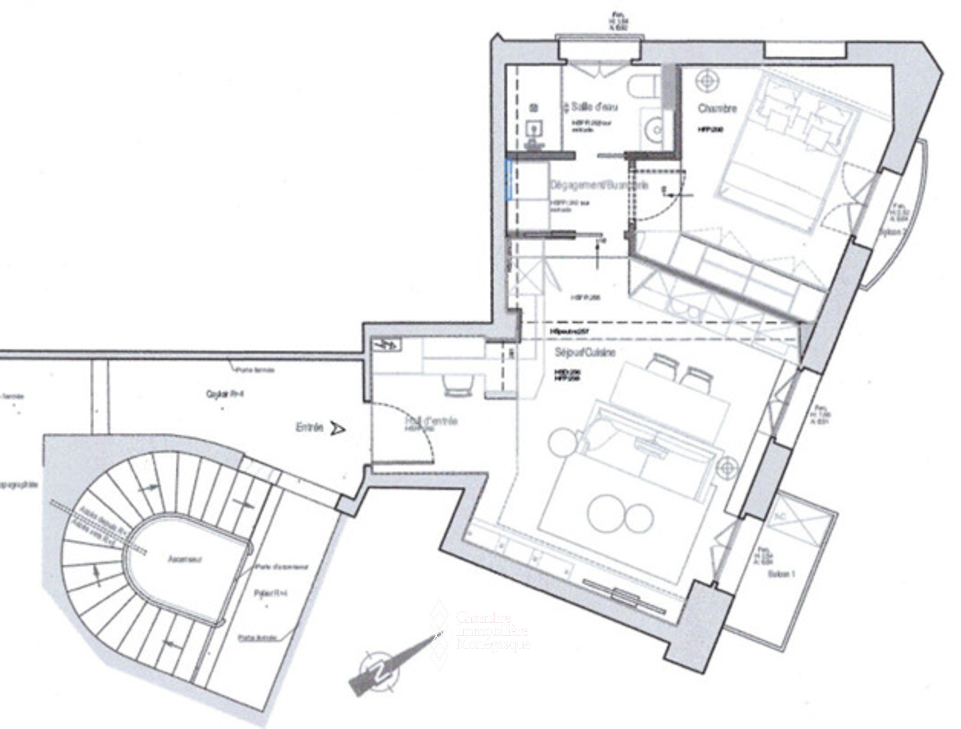
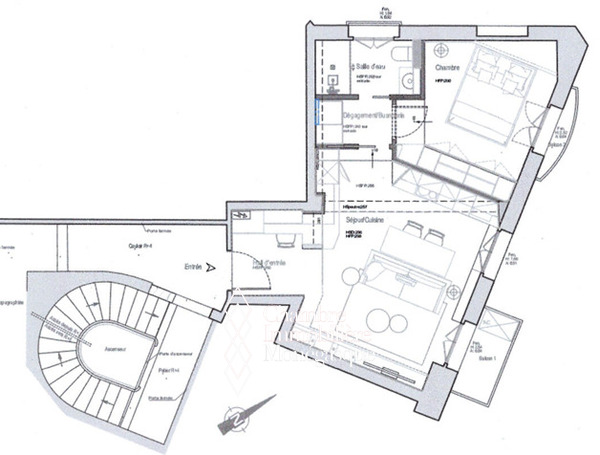
Superf. totale60 m²

Superf. terrasse4 m²

Étage4

Télécharger en PDF

Description

La radieuse - dans une jolie résidence bourgeoise située à proximité des plages du Larvotto et de toutes les commodités, appartement lumineux magnifiquement rénové avec goûts et matériaux de qualité. Vendu meublé avec de nombreux rangements et cuisine équipée. 
L'appartement se compose comme suit : 
- Hall d'entrée avec coin bureau
- séjour avec balcon et cuisine américaine
- salle de bains 
- chambre avec balcon 
Possibilité de louer un parking à proximité 

Monaco Properties

T. +377 97 97 33 97 info@mpmonaco.com https://www.monacoproperties.mc Voir tous les biens

Galerie Photos

Ce document ne fait partie d'aucune offre ou contrat. Toutes mesures, surfaces et distances sont approximatives. Le descriptif et les plans ne sont donnés qu'à titre indicatif et leur exactitude n'est pas garantie. Les photographies ne montrent que certaines parties de la propriété. L'offre est valable sauf en cas de vente, retrait de vente, changement de prix ou d'autres conditions, sans préalable.